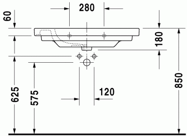
ohne Überlauf, mit Hahnlochbank
Größe:850 x 480 mm
Varianten:1 Hahnloch durchgestochenohne Hahnloch
© Schmoock Design